Cicilan mulai Rp 31,6 juta/bulan
Detail Properti
Nama Bangunan | Gudang Murah Plus Kantor Dan Mess Karyawan Di Cileungsi Bogor | Sertifikat | SHM |
Jumlah Lantai | 1 | Daya Listrik | 95000 Watt |
Tipe Properti | Gudang | Tipe Iklan | Dijual |
Rangkuman Properti
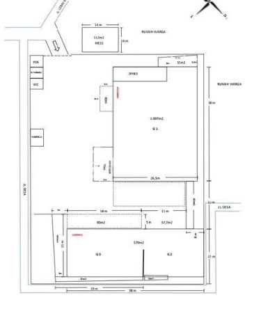
Dijual Gudang strategis di Cileungsi, Bogor, Jawa Barat Spesifikasi: luas bangunan 1700m2, luas tanah 4000m2 Area strategis untuk bisnis. Harga jual Rp 8,6 Miliar
Deskripsi
Gudang + Kantor + Mess Di Cileungsi Bogor Harga Rp. 8,6 Milyar Sertifikat ada 2 : SHM dan SHGB Luas Tanah 4000 (12 X 48) Listrik 95000 Watt Bisa pasang gardu sendiri Kamar Mandi 2 Luas Bangunan 1700 m2 Terdiri dari 2 bangunan: Bangunan 1 luas 1000 M Bangunan 2 luas. 700 M Ada Ruang Kantor : Direktur Manajer Staff Mess Karyawan Pos Security Ruang Tunggu Chat Whatsapp 0896 7399 7269 Mohon Di Jadwal Untuk Kunjungan NB : Untuk transaksi beli rumah sampai 31 Maret 2025 akan mendapatkan E-Voucher Brighton Vaganza berpeluang untuk memenangkan Grand Prize 1 Apartemen Aeropolis Residence dan 50 hadiah lain nya SdnGB43
Lokasi Properti

Rating & Ulasan Lokasi Properti

Berikan rating dan ulasan terkait lokasi properti.
Ayo bagikan pengalamanmu tentang lingkungan sekitar, fasilitas umum, dan keamanan di area properti ini. Ulasanmu membantu orang lain memilih tempat tinggal yang tepat.
Pertanyaan Terkait Properti

Simulasi KPR
Cicilan mulai Rp 31,6 juta/bulan
Kontak Pengiklan
Apakah iklan ini tidak benar atau mengandung informasi yang tidak akurat?








